Accessibility Lifts
The Delta 7000 Accessibility Lift is designed for barrier-free applications where there are two or more floors that require access. These lifts are suitable for places of worship, funeral homes, service clubs, community centres, group homes or other low-use applications.
The Delta 7000 is available with finishes and options ranging from a basic economical unit to a high-end showpiece. All of our components are simple, economical and—most importantly—reliable.
The installation of the Delta 7000 is simple and therefore easily fits into even the most stringent project schedule.
Five Year Warranty
With a track record of over 50 years’ reliable service, Delta now offers you a five-year warranty—one of the longest warranties in the accessibility industry.
Selected Features
- Capacity 454 kilograms
- Attractive and durable melamine-clad panels or choice of custom colours and finishes (see Accessibility Lift Options)
- Wheelchair-height handrail
- Easy-to-use key-restricted or keypad-restricted operation available
- Emergency battery lowering
- Emergency lighting
- Emergency alarm and stopping
- Maximum travel of 7000 mm (four floors)
- CAN/CSA B355 Safety Code approved
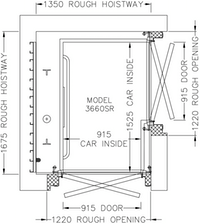
A variety of sizes and door configurations are available (see below), including casket-sized cabs, which are ideal for churches and funeral homes.
Downloads
Delta 7000 Drawings
|
|
|
|
|
|
|
|
|
|
Schedule Fire Test
